O projektu
Lokalita
Nabídka nemovitostí
Bytové jednotky
Garážová stání
Ceník
Bytové jednotky
Garážová stání
Standardy
Galerie
Postup při koupi
Kontaktujte nás
Úvod
|
Nabídka nemovitostí
|
B.06 - 6.3.02
Zpět na nájezdovou mapu
B.06 - 6.3.02
Cena
7 430 000 Kč
Kontaktní formulář
Doporučit známému
Postup při koupi
Stav:
K dispozici
Dispozice:
2+KK
Užitná plocha:
53,16 m
2
Balkon:
14,3 m
2
Terasa:
Ne
Sklepní kóje:
2,8 m
2
Zavřít
www.jerlinka.cz/nabidka-nemovitosti/b-06-6-3-02
Copy
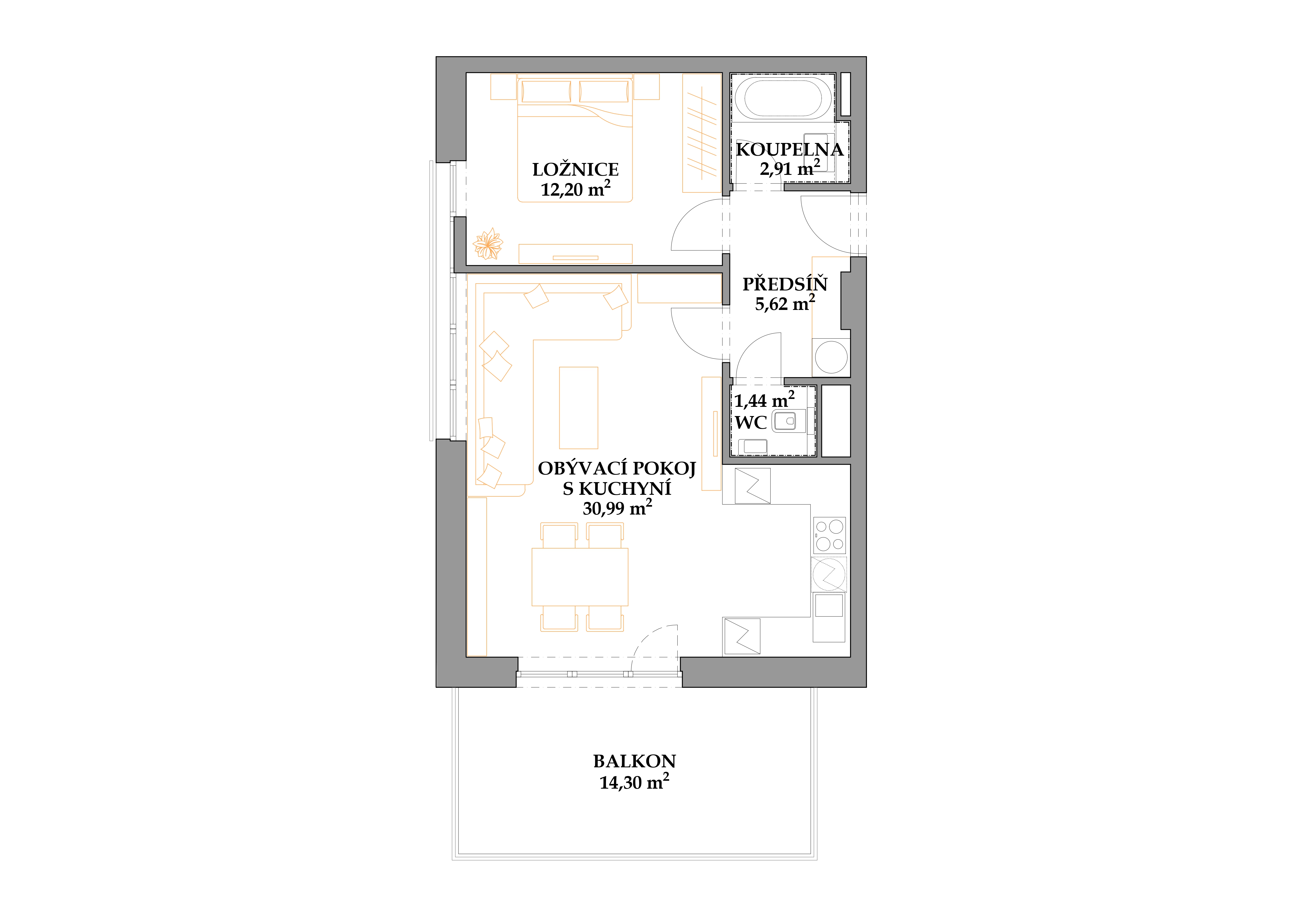
Označení
Místnost
Rozloha
01
Obývací pokoj + KK
30,99 m2
02
Ložnice
12,20 m2
03
WC
1,44 m2
04
Koupelna
2,91 m2
05
Předsíň
5,62 m2
06
Balkon
14,30 m2
Karta nemovitosti
Prodávající
Mgr. Lucie Lejska
Prodejce projektu
+420 604 225 158
lucie.lejska%at%unistav.cz
Daniela Vlková
Prodejce projektu
+420 604 222 061
daniela.vlkova%at%unistav.cz
Kontaktujte nás.
Mám zájem o:
1 + KK
2 + KK
3 + KK
4 + KK
Jméno
Příjmení
E-mail
Telefon
Poznámka
Odeslat formulář
Váš prohlížeč není podporován
×
Nainstalujte si prosím některý z podporovaných prohlížečů
Chrome
Firefox