B.04 - 4.5.02
Stav:
Prodáno
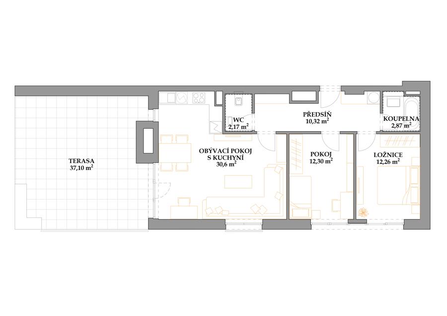
Dispozice:
3+KK
Užitná plocha:
70,52 m2
Balkon:
37,1 m2
Terasa:
Ne
Sklepní kóje:
2,8 m2

Označení | Místnost | Rozloha |
---|---|---|
01 | Obývací pokoj + KK | 30,60 m2 |
02 | Ložnice | 12,26 m2 |
03 | Pokoj | 12,30 m2 |
04 | WC | 2,17 m2 |
05 | Koupelna | 2,87 m2 |
06 | Předsíň | 10,32 m2 |
07 | Terasa | 37,10 m2 |
Prodávající

